


NÖ Wohnbauforschung WIA

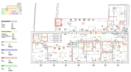
Im Rahmen der NÖ Wohnbauforschung "Altersvergnügen im dritten Lebensabschnitt im Eigenheim bzw. in den eigenen vier Wänden" durften wir in Zusammenarbeit mit der Sonnenplatz Großschönau GmbH und der Marktgemeinde Schweiggers ein leerstehendes Gebäude (Haus Nr. 7) planerisch analysieren.
Ziel war es, den baulichen Bestand sowie den Bedarf an altersgerechtem Wohnen im Zusammenspiel mit Gesundheitsversorgung, Betreuung (z. B. Community Nurses, Nachbarschaftshilfe Plus) und technischer Ausstattung (Telehealth) zu prüfen. Im Rahmen der angewandten Forschungsarbeit wurden die Interessen der Gemeinde sowie relevanter öffentlicher und halböffentlicher Akteur:innen erfasst und die daraus abgeleiteten Raum- und Bauanforderungen definiert.
Bei den Sondierungsgesprächen wurde die Lebensrealität älterer Menschen in Schweiggers, mit Fokus auf Wohnen, Mobilität, soziale Teilhabe, Gesundheit und Pflege untersucht. Ziel war es, Bedarfe zu erkennen und diese in die Zentrumsentwicklung – insbesondere am Beispiel des Hauses Nr. 7 – einfließen zu lassen.
Die problemzentrierten Interviews wurden im Herbst 2024 mit sozialen und gewerblichen Akteur:innen geführt. Die Gespräche beleuchteten Herausforderungen wie Isolation, unzureichende altersgerechte Wohnformen und pflegerische Versorgung sowie soziale dörfliche Infrastruktur.
Anhand des Projektes „Haus Nr. 7“ konnte ein Modell für generationengerechtes Wohnen im Ortskern erarbeitet und ein Beitrag zur Leerstandsaktivierung sowie zum Erhalt der Lebensqualität älterer Menschen aufgezeigt werden. Folgende Handlungsempfehlungen wurden für die Gemeinde als Entscheidungsgrundlage erarbeitet:
- Nutzung und Sanierung des bestehenden Gebäudes statt Neubau.
- Förderung sozialer und technischer Innovationen im Wohnbereich für ein würdevolle Wohnsituation im Alter.
- Integration klimafreundlicher Energielösungen (z. B. Nahwärme, Wärmepumpen).
- Ausbau leistbarer, altersgerechter und nachhaltiger Wohnmodelle.
Within the framework of the Lower Austrian Housing Research Program “Pleasures of Aging – Living in One’s Own Home in the Third Stage of Life”, we had the opportunity to conduct a planning-based analysis of a vacant building (House No. 7) in collaboration with Sonnenplatz Großschönau GmbH and the Municipality of Schweiggers.
The aim was to assess both the existing building structure and the needs for age-appropriate living, in connection with healthcare provision, care services (e.g., Community Nurses, Nachbarschaftshilfe Plus), and technical infrastructure such as telehealth solutions. As part of this applied research project, the interests of the municipality as well as those of relevant public and semi-public stakeholders were identified, and corresponding spatial and construction requirements were defined.
During exploratory discussions, the living realities of older residents in Schweiggers were examined — focusing on housing, mobility, social participation, health, and care. The goal was to identify local needs and to integrate these findings into town center development, particularly through the example of House No. 7.
The problem-centered interviews, conducted in autumn 2024 with social and commercial stakeholders, highlighted challenges such as isolation, insufficient age-appropriate housing options, limited care availability, and gaps in village-level social infrastructure.
Based on the House No. 7 project, a model for intergenerational living in the town center was developed, demonstrating how vacant buildings can be reactivated while maintaining and enhancing the quality of life for older adults. Key recommendations for the municipality as a basis for decision-making included:
- Utilization and renovation of the existing building rather than new construction.
- Promotion of social and technological innovations in the housing sector to ensure dignified living conditions in old age.
- Integration of climate-friendly energy solutions (e.g., district heating, heat pumps).
- Expansion of affordable, age-appropriate, and sustainable housing models.
Year:
2024
Location:
Schweiggers/AUT
Funding:
NÖ Wohnbauforschung









